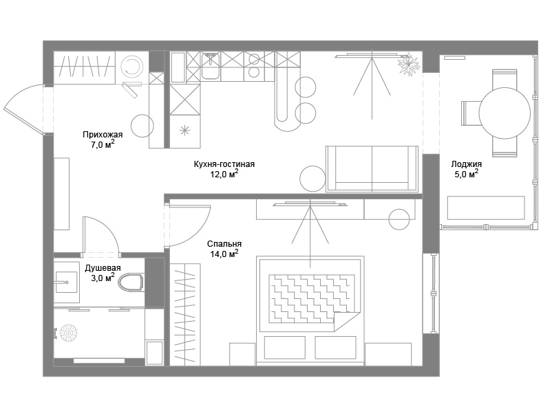
Проект планировки стандартной однушки <40 м² в стиле современная классика: как сделать красиво и уютно

Проект планировки стандартной однушки <40 м² в стиле современная классика: как сделать красиво и уютноОднажды дизайнер решился на невозможное — обустроить однокомнатную квартиру так, чтобы вместить все необходимое без лишних перепланировок. «Ведь в однушке всё равно не уместишься», — говорили ему злобные языки. Но он не сдался!

И вот перед вами проект, где есть место и спальне, и рабочему столу, и кухне с техникой, и даже уголку для кошки. Как там у Шрёдингера было — кошка жива или нет? В этой квартире она точно жива и счастлива!

Сейчас очень модно делать евродвушки, но что делать тем, у кого однокомнатная квартира?

Не расстраивайтесь! Даже в стандартной однушке можно создать уютное пространство без лишних хлопот. Главное — не превратить жилище в мебельный склад.

А то потом будешь открывать шкаф, а тебя оттуда уже только гости видеть будут.

Старые времена запоминаются по своим стандартным однокомнаткам: диван, стенка, ТВ — все как в клише. Но сегодня всё изменилось! Если нет возможности выделить спальню отдельно, то кровать просто перемещается в гостиную.

И это не значит, что нужно спать на ковре возле обеденного стола! Зона сна может быть организована так, что даже самый принцессный человек будет доволен.

И что там про компьютерный стол? Оказывается, его можно интегрировать в ТВ-зону так ловко, что никто и не подумает, что это рабочее место.

Всё компактно и функционально! А если хозяйка работает из дому, то эргономика должна быть на высоте. Ведь какая польза от красивого интерьера, если спина болит после каждого рабочего дня?

Когда дело доходит до кухни в однокомнатной квартире, тут тоже места хватает на все: холодильник, посудомойку, плиту… да даже верхние шкафы!

И при этом остаётся место для ужинов за круглым столом. Главное — чтобы стол был на одной опоре: так удобнее садиться и ноги не задеваешь.

А как жить без зон отдыха? Определенно нужно иметь свое местечко для чашки чая и чтения любимой книги. Маленькое кресло напротив модного открытого модуля со стеклянными полками — что может быть лучше?

А ещё зона для питомца со всеми его причудами! Посмотрите на этот шикарный проект!

И конечно же мы не можем обойти стороной самые «загадочные» помещения — раздельный санузел! Ванная комната полностью функциональна: есть ванна (что редкость для однокомнатных), раковина с тумбой и зеркало с подсветкой. В то время как туалет остается скромным и минималистичным.

И как жить без прихожей?

Даже если она размером с кладовку (4 полных квадрата!), всё равно можно расставить всё так удобно и компактно, что будешь поражен результатом. Навесная панель для ключей, зеркало ростовое, шкаф для верхней одежды — все продумано до мелочей!

Так что друзья мои, не бойтесь экспериментировать со своим жильем! Даже самая обычная однокомнатная квартира может превратиться в настоящий интерьерный шедевр без лиопших перепланировок.

Живите ярко и со вкусом!